







Handicare Hammock Sling with Head Support
PayPal Pay Later
Starts From
Free Shipping
Description
Handicare Hammock Sling with Head Support is engineered to deliver exceptional full-body stability and comfort during patient transfers. Designed for individuals who require more structured support than a standard universal sling, this hammock-style patient lift sling provides enhanced stabilization around the hips, sacral region, upper thighs, and shoulders. Its integrated head support promotes proper alignment and security, while divided leg sections help maintain a neutral hip position, minimizing internal and external rotation. Suitable for both home care and institutional environments, this medical transfer sling is available in multiple fabric options to accommodate varied clinical needs, hygiene protocols, and patient comfort preferences.
Constructed with carefully selected materials and subjected to rigorous quality inspections, this sling reflects dependable performance and long-term durability. The streamlined construction avoids bulky seams or unnecessary stitching, helping reduce friction and shear while promoting patient comfort. With versatile positioning options and caregiver-friendly features, it supports safe, dignified, and efficient transfers across a wide range of care settings.
Key Features:
- Integrated Head Support for enhanced cervical alignment and upper body stability
- Maximum Sacral and Thigh Support for users requiring increased positioning control
- Neutral Hip Positioning to reduce internal and external hip rotation
- Divided Leg Supports for flexible application in seated or supine positions
- Multiple Loop and Strap Options to accommodate seated and semi-reclined transfers
- Built-In Caregiver Handles for improved control during repositioning
- Small Commode Opening to facilitate hygiene access
- Available Fabric Options: Mesh/Poly, PolySlip, Spacer, and Quilted materials
- Durable Construction with smooth seams to minimize friction and shear
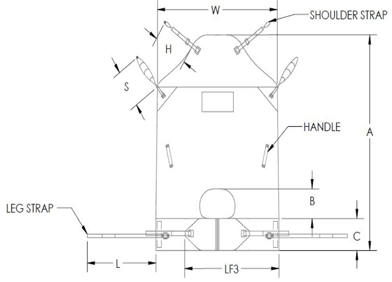
Specifications
Polyester SlipFit (PolySlip)

| Size | Part No. | A | B | C | W | LF | L | S | HS | Max SWL | Trim Color |
|---|---|---|---|---|---|---|---|---|---|---|---|
| XXS | 8D1720 | 27 1/2" | 4 1/2" | 4" | 25" | 19" | 23 1/2" | 15" | 6 1/2" | 450 lbs | White |
| XS | 8D1620 | 33 1/2" | 6" | 5" | 29 1/2" | 21 1/2" | 23 1/2" | 15" | 8" | 450 lbs | Silver |
| S | 8D1520 | 37 1/2" | 6" | 6" | 33 1/2" | 27" | 23 1/2" | 15" | 10 1/2" | 625 lbs | Red |
| M | 8D1420 | 42" | 7" | 7" | 38" | 28 3/4" | 23 1/2" | 15" | 13 3/4" | 625 lbs | Yellow |
| L | 8D1320 | 43" | 8" | 8" | 41" | 32" | 23 1/2" | 15" | 13 3/4" | 625 lbs | Green |
| XL | 8D1220 | 46 1/2" | 8" | 9" | 46 1/2" | 35" | 23 1/2" | 15" | 13 3/4" | 1000 lbs | Blue |
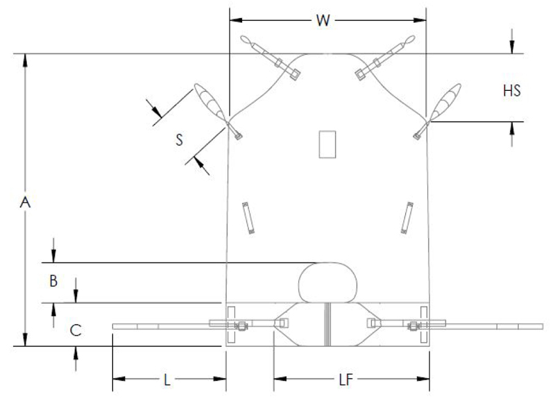
Polyester Mesh (Mesh/Poly)

| Size | Part No. | A | B | C | D | W | LF3 | L3 | S4 | HS | Max SWL | Trim Color |
|---|---|---|---|---|---|---|---|---|---|---|---|---|
| XXS | 8D2730 | 27 1/2" | 18" | 4 1/2" | 4" | 25" | 19" | 23 1/2" | 15" | 6 1/2" | 450 lbs | White |
| XS | 8D2630 | 33 1/2" | 23" | 6" | 5" | 29 1/2" | 21 1/2" | 23 1/2" | 15" | 8" | 450 lbs | Silver |
| S | 8D2530 | 37 1/2" | 25" | 6" | 6" | 33 1/2" | 27" | 23 1/2" | 15" | 10 1/2" | 625 lbs | Red |
| M | 8D2430 | 42" | 27 1/2" | 7" | 7" | 38" | 28 3/4" | 23 1/2" | 15" | 13 3/4" | 625 lbs | Yellow |
| L | 8D2330 | 43" | 27 1/2" | 8" | 8" | 41" | 32" | 23 1/2" | 15" | 13 3/4" | 625 lbs | Green |
| XL | 8D2230 | 46 1/2" | 29" | 10" | 8" | 46 1/2" | 35" | 23 1/2" | 15" | 13 3/4" | 1000 lbs | Blue |
Spacer Specifications

| Size | Part No. | A | B | C | D | W | LF3 | L3 | S4 | HS | Max SWL | Trim Color |
|---|---|---|---|---|---|---|---|---|---|---|---|---|
| XXS | 8D4730 | 27 1/2" | 18" | 4 1/2" | 4" | 25" | 19" | 23 1/2" | 15" | 6 1/2" | 625 lbs | White |
| XS | 8D4630 | 33 1/2" | 23" | 6" | 5" | 29 1/2" | 21 1/2" | 23 1/2" | 15" | 8" | 625 lbs | Silver |
| S | 8D4530 | 37 1/2" | 25" | 6" | 6" | 33 1/2" | 27" | 23 1/2" | 15" | 10 1/2" | 625 lbs | Red |
| M | 8D4430 | 42" | 27 1/2" | 7" | 7" | 38" | 28 3/4" | 23 1/2" | 15" | 13 3/4" | 625 lbs | Yellow |
| L | 8D4330 | 43" | 27 1/2" | 8" | 8" | 41" | 32" | 23 1/2" | 15" | 13 3/4" | 625 lbs | Green |
| XL | 8D4230 | 46 1/2" | 29" | 10" | 8" | 46 1/2" | 35" | 23 1/2" | 15" | 13 3/4" | 625 lbs | Blue |
Quilted Mesh (Quilted)

| Size | Part No. | A | B | C | D | E | F | G | H | I | J | K | Extra Shoulder Straps Part No. | Extra Shoulder Straps Length | Max SWL | Trim Color |
|---|---|---|---|---|---|---|---|---|---|---|---|---|---|---|---|---|
| XS | 537105 | 25" | 28" | 18" | 14" | 4 1/2" | 4" | 5" | 19" | 10" | 19" | 16" | 537106 | 6" | 600 lbs | Silver |
| S | 537110 | 27" | 30" | 25" | 15" | 7" | 5" | 7" | 22" | 10" | 19" | 20" | 537111 | 6" | 600 lbs | Red |
| M | 537120 | 29" | 36" | 32" | 16" | 9 1/2" | 6" | 9" | 27" | 10" | 19" | 24" | 537121 | 8" | 600 lbs | Yellow |
| L | 537130 | 31" | 42" | 39" | 17" | 12" | 7" | 11" | 32" | 10" | 19" | 28" | 537131 | 10" | 600 lbs | Green |
| XL | 537140 | 33" | 48" | 46" | 18" | 14 1/2" | 8" | 13" | 37" | 10" | 19" | 32" | 537141 | 10" | 600 lbs | Blue |
| XXL | 537150 | 35" | 54" | 53" | 19" | 17" | 9" | 15" | 42" | 10" | 19" | 36" | 537151 | 12" | 600 lbs | Black |
Warranty
- Manufacturer warrants to the original purchaser that this products will be free from defects in materials and workmanship for a period of Six (6) months from the date of purchase, when maintained according to manufacturer specifications, using manufacturer provided equipment and maintenance schedule.
- Single Patient Specific slings are designed for limited use with one patient and may not be laundered.
- Manufacturer will replace any disposable sling found to have a manufacturing defect.
- Normal wear and tear will not be covered under warranty.
- This warranty expressly excludes wearable components including but not limited to foam parts and caster tread.
- Furthermore, this warranty is void and null for product that has not been purchased or paid for in full.
- Parts under warranty will be covered at no cost. Any labor cost for service under warranty is not covered as per our terms of sale.
- Standard Manufacturer Terms & Conditions are applicable for Warranty of this product.
- Please call manufacturer for warranty/repair issues, medicaleshop cannot provide onsite warranty/repair services.
Please call us for specific details.
Return
- Unfortunately hygiene items cannot be returned once opened, due to health concerns.
- Standard manufacturer terms & conditions are applicable for return policy of this product.
Please call us for specific details
FAQs
Q: What makes the Hammock Sling different from a universal sling?
A: The Hammock Sling provides enhanced sacral, thigh, and hip support, along with integrated head support. It is often recommended for individuals who require greater positioning stability or who need assistance maintaining neutral hip alignment during transfers.
Q: Is the sling suitable for both home care and healthcare facilities?
A: Yes. The sling is designed for use in home environments, long-term care facilities, rehabilitation centers, and hospitals, offering durability and adaptability for varied care settings.
Q: What fabric options are available and how do they differ?
A: The sling is offered in Mesh/Poly for breathability and hygiene use, PolySlip for smooth application and repositioning, Spacer fabric for pressure redistribution and comfort, and Quilted material for enhanced softness and support.
Q: Can the sling be applied while the patient is seated or lying down?
A: Yes. The divided leg supports and flexible strap configuration allow application in both seated and supine positions, supporting efficient caregiver workflow.
Q: Does the sling support toileting transfers?
A: The sling includes a small commode opening to allow hygiene access during toileting transfers while maintaining structural support.
Q: Who is an ideal candidate for this sling?
A: This sling is appropriate for individuals who require moderate to high levels of postural support, including those with limited trunk control, reduced muscle tone, or complex positioning needs. A clinical assessment is recommended to determine the most appropriate sling type and fabric option.
Description
Handicare Hammock Sling with Head Support is engineered to deliver exceptional full-body stability and comfort during patient transfers. Designed for individuals who require more structured support than a standard universal sling, this hammock-style patient lift sling provides enhanced stabilization around the hips, sacral region, upper thighs, and shoulders. Its integrated head support promotes proper alignment and security, while divided leg sections help maintain a neutral hip position, minimizing internal and external rotation. Suitable for both home care and institutional environments, this medical transfer sling is available in multiple fabric options to accommodate varied clinical needs, hygiene protocols, and patient comfort preferences.
Constructed with carefully selected materials and subjected to rigorous quality inspections, this sling reflects dependable performance and long-term durability. The streamlined construction avoids bulky seams or unnecessary stitching, helping reduce friction and shear while promoting patient comfort. With versatile positioning options and caregiver-friendly features, it supports safe, dignified, and efficient transfers across a wide range of care settings.
Key Features:
- Integrated Head Support for enhanced cervical alignment and upper body stability
- Maximum Sacral and Thigh Support for users requiring increased positioning control
- Neutral Hip Positioning to reduce internal and external hip rotation
- Divided Leg Supports for flexible application in seated or supine positions
- Multiple Loop and Strap Options to accommodate seated and semi-reclined transfers
- Built-In Caregiver Handles for improved control during repositioning
- Small Commode Opening to facilitate hygiene access
- Available Fabric Options: Mesh/Poly, PolySlip, Spacer, and Quilted materials
- Durable Construction with smooth seams to minimize friction and shear
Specifications
Polyester SlipFit (PolySlip)

| Size | Part No. | A | B | C | W | LF | L | S | HS | Max SWL | Trim Color |
|---|---|---|---|---|---|---|---|---|---|---|---|
| XXS | 8D1720 | 27 1/2" | 4 1/2" | 4" | 25" | 19" | 23 1/2" | 15" | 6 1/2" | 450 lbs | White |
| XS | 8D1620 | 33 1/2" | 6" | 5" | 29 1/2" | 21 1/2" | 23 1/2" | 15" | 8" | 450 lbs | Silver |
| S | 8D1520 | 37 1/2" | 6" | 6" | 33 1/2" | 27" | 23 1/2" | 15" | 10 1/2" | 625 lbs | Red |
| M | 8D1420 | 42" | 7" | 7" | 38" | 28 3/4" | 23 1/2" | 15" | 13 3/4" | 625 lbs | Yellow |
| L | 8D1320 | 43" | 8" | 8" | 41" | 32" | 23 1/2" | 15" | 13 3/4" | 625 lbs | Green |
| XL | 8D1220 | 46 1/2" | 8" | 9" | 46 1/2" | 35" | 23 1/2" | 15" | 13 3/4" | 1000 lbs | Blue |
Polyester Mesh (Mesh/Poly)

| Size | Part No. | A | B | C | D | W | LF3 | L3 | S4 | HS | Max SWL | Trim Color |
|---|---|---|---|---|---|---|---|---|---|---|---|---|
| XXS | 8D2730 | 27 1/2" | 18" | 4 1/2" | 4" | 25" | 19" | 23 1/2" | 15" | 6 1/2" | 450 lbs | White |
| XS | 8D2630 | 33 1/2" | 23" | 6" | 5" | 29 1/2" | 21 1/2" | 23 1/2" | 15" | 8" | 450 lbs | Silver |
| S | 8D2530 | 37 1/2" | 25" | 6" | 6" | 33 1/2" | 27" | 23 1/2" | 15" | 10 1/2" | 625 lbs | Red |
| M | 8D2430 | 42" | 27 1/2" | 7" | 7" | 38" | 28 3/4" | 23 1/2" | 15" | 13 3/4" | 625 lbs | Yellow |
| L | 8D2330 | 43" | 27 1/2" | 8" | 8" | 41" | 32" | 23 1/2" | 15" | 13 3/4" | 625 lbs | Green |
| XL | 8D2230 | 46 1/2" | 29" | 10" | 8" | 46 1/2" | 35" | 23 1/2" | 15" | 13 3/4" | 1000 lbs | Blue |
Spacer Specifications

| Size | Part No. | A | B | C | D | W | LF3 | L3 | S4 | HS | Max SWL | Trim Color |
|---|---|---|---|---|---|---|---|---|---|---|---|---|
| XXS | 8D4730 | 27 1/2" | 18" | 4 1/2" | 4" | 25" | 19" | 23 1/2" | 15" | 6 1/2" | 625 lbs | White |
| XS | 8D4630 | 33 1/2" | 23" | 6" | 5" | 29 1/2" | 21 1/2" | 23 1/2" | 15" | 8" | 625 lbs | Silver |
| S | 8D4530 | 37 1/2" | 25" | 6" | 6" | 33 1/2" | 27" | 23 1/2" | 15" | 10 1/2" | 625 lbs | Red |
| M | 8D4430 | 42" | 27 1/2" | 7" | 7" | 38" | 28 3/4" | 23 1/2" | 15" | 13 3/4" | 625 lbs | Yellow |
| L | 8D4330 | 43" | 27 1/2" | 8" | 8" | 41" | 32" | 23 1/2" | 15" | 13 3/4" | 625 lbs | Green |
| XL | 8D4230 | 46 1/2" | 29" | 10" | 8" | 46 1/2" | 35" | 23 1/2" | 15" | 13 3/4" | 625 lbs | Blue |
Quilted Mesh (Quilted)

| Size | Part No. | A | B | C | D | E | F | G | H | I | J | K | Extra Shoulder Straps Part No. | Extra Shoulder Straps Length | Max SWL | Trim Color |
|---|---|---|---|---|---|---|---|---|---|---|---|---|---|---|---|---|
| XS | 537105 | 25" | 28" | 18" | 14" | 4 1/2" | 4" | 5" | 19" | 10" | 19" | 16" | 537106 | 6" | 600 lbs | Silver |
| S | 537110 | 27" | 30" | 25" | 15" | 7" | 5" | 7" | 22" | 10" | 19" | 20" | 537111 | 6" | 600 lbs | Red |
| M | 537120 | 29" | 36" | 32" | 16" | 9 1/2" | 6" | 9" | 27" | 10" | 19" | 24" | 537121 | 8" | 600 lbs | Yellow |
| L | 537130 | 31" | 42" | 39" | 17" | 12" | 7" | 11" | 32" | 10" | 19" | 28" | 537131 | 10" | 600 lbs | Green |
| XL | 537140 | 33" | 48" | 46" | 18" | 14 1/2" | 8" | 13" | 37" | 10" | 19" | 32" | 537141 | 10" | 600 lbs | Blue |
| XXL | 537150 | 35" | 54" | 53" | 19" | 17" | 9" | 15" | 42" | 10" | 19" | 36" | 537151 | 12" | 600 lbs | Black |
Warranty
- Manufacturer warrants to the original purchaser that this products will be free from defects in materials and workmanship for a period of Six (6) months from the date of purchase, when maintained according to manufacturer specifications, using manufacturer provided equipment and maintenance schedule.
- Single Patient Specific slings are designed for limited use with one patient and may not be laundered.
- Manufacturer will replace any disposable sling found to have a manufacturing defect.
- Normal wear and tear will not be covered under warranty.
- This warranty expressly excludes wearable components including but not limited to foam parts and caster tread.
- Furthermore, this warranty is void and null for product that has not been purchased or paid for in full.
- Parts under warranty will be covered at no cost. Any labor cost for service under warranty is not covered as per our terms of sale.
- Standard Manufacturer Terms & Conditions are applicable for Warranty of this product.
- Please call manufacturer for warranty/repair issues, medicaleshop cannot provide onsite warranty/repair services.
Please call us for specific details.
Return
- Unfortunately hygiene items cannot be returned once opened, due to health concerns.
- Standard manufacturer terms & conditions are applicable for return policy of this product.
Please call us for specific details
FAQs
Q: What makes the Hammock Sling different from a universal sling?
A: The Hammock Sling provides enhanced sacral, thigh, and hip support, along with integrated head support. It is often recommended for individuals who require greater positioning stability or who need assistance maintaining neutral hip alignment during transfers.
Q: Is the sling suitable for both home care and healthcare facilities?
A: Yes. The sling is designed for use in home environments, long-term care facilities, rehabilitation centers, and hospitals, offering durability and adaptability for varied care settings.
Q: What fabric options are available and how do they differ?
A: The sling is offered in Mesh/Poly for breathability and hygiene use, PolySlip for smooth application and repositioning, Spacer fabric for pressure redistribution and comfort, and Quilted material for enhanced softness and support.
Q: Can the sling be applied while the patient is seated or lying down?
A: Yes. The divided leg supports and flexible strap configuration allow application in both seated and supine positions, supporting efficient caregiver workflow.
Q: Does the sling support toileting transfers?
A: The sling includes a small commode opening to allow hygiene access during toileting transfers while maintaining structural support.
Q: Who is an ideal candidate for this sling?
A: This sling is appropriate for individuals who require moderate to high levels of postural support, including those with limited trunk control, reduced muscle tone, or complex positioning needs. A clinical assessment is recommended to determine the most appropriate sling type and fabric option.
Starts From
